7033 Duff Street, Vancouver – Laneway Home
Location: 7033 Duff Street, Vancouver, BC
Project Type: New Laneway Home Construction
Zoning: R1-1
Building Size: Approximately 940 sq. ft. over two storeys
Status: Design & permitting phase – 2026 completion
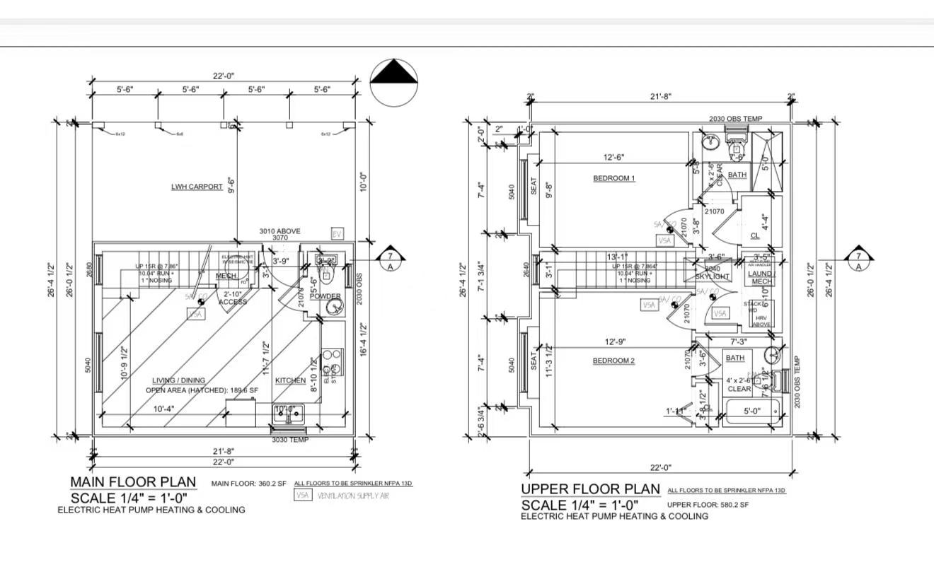
This new two-storey laneway home at 7033 Duff Street has been carefully designed to fit within the allowable density, site coverage, and impermeable surface limits of Vancouver’s R1-1 zoning. With a total floor area of approximately 940 square feet across two levels, the home achieves near-maximum permitted build area while maintaining appropriate setbacks, drainage performance, and outdoor space.
The main floor features an efficient open-concept layout that combines the kitchen, dining, and living areas, creating a bright and functional central living space. Mechanical systems, storage, and circulation have been strategically placed to optimize usable floor area. A covered carport is integrated below, supporting both parking requirements and weather protection while minimizing site impact.
The upper floor contains two bedrooms, a full bathroom, laundry/mechanical space, and skylights that introduce natural light into the centre of the home. Window placement and roof geometry have been coordinated to balance privacy, daylight, and massing within the surrounding neighbourhood context.
Rely Construction is leading this project from design coordination through permitting and service planning, ensuring compliance with City of Vancouver bylaws, building code requirements, and long-term constructability. Once complete, this laneway home will provide a durable, efficient, and thoughtfully executed addition to an established residential property.
Before the Permits











