Location: Vancouver, BC
Completion: 2027
Project Type: Full Demolition, Multiplex Residential Units
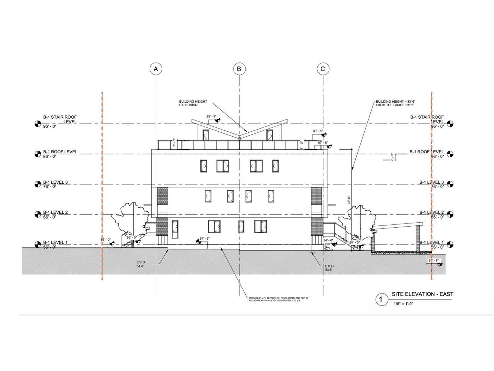
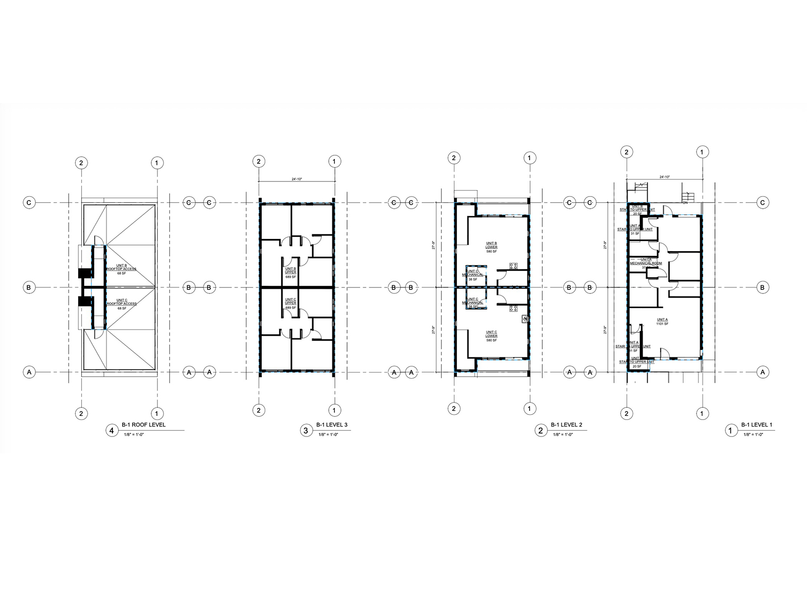
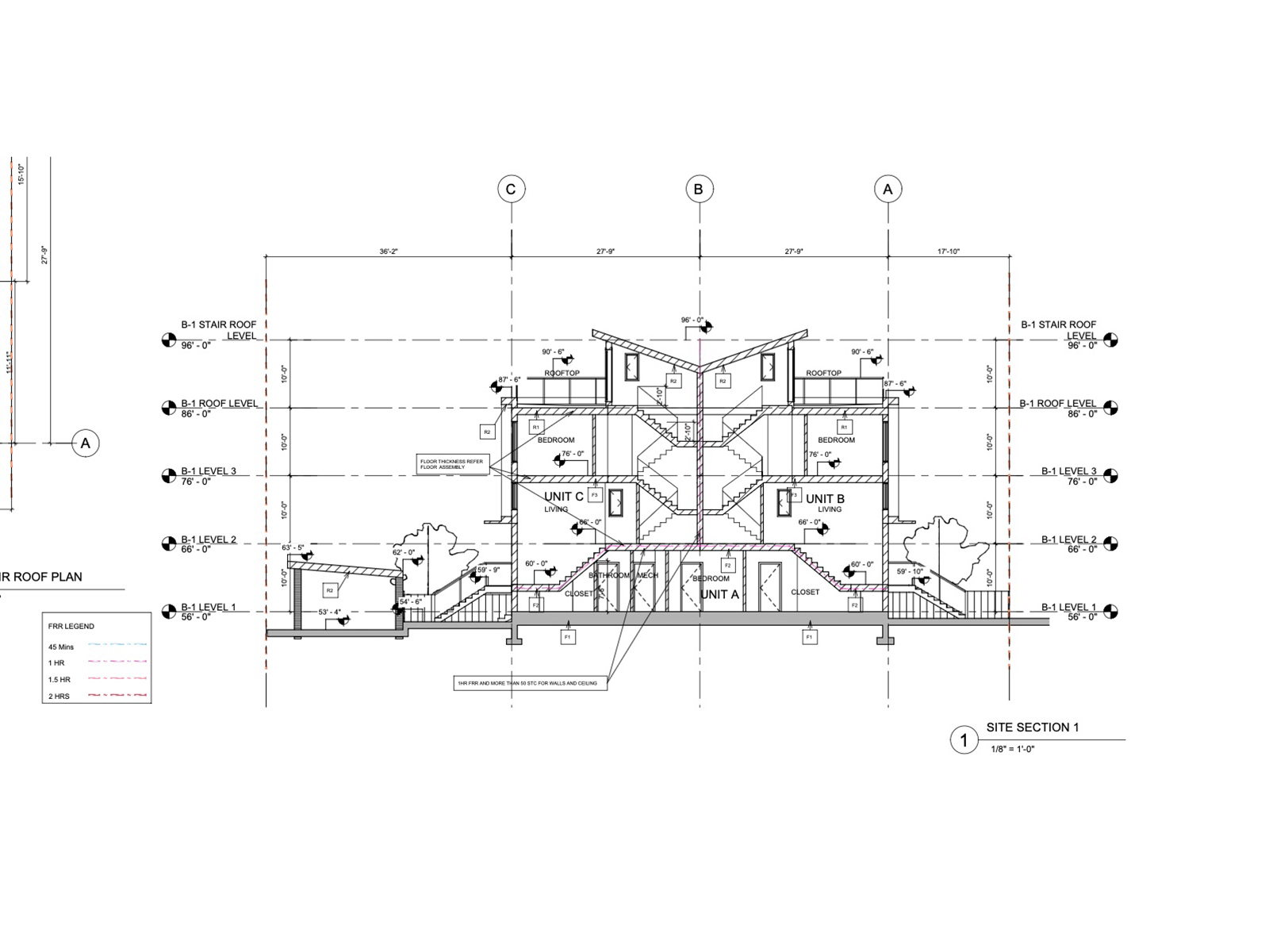
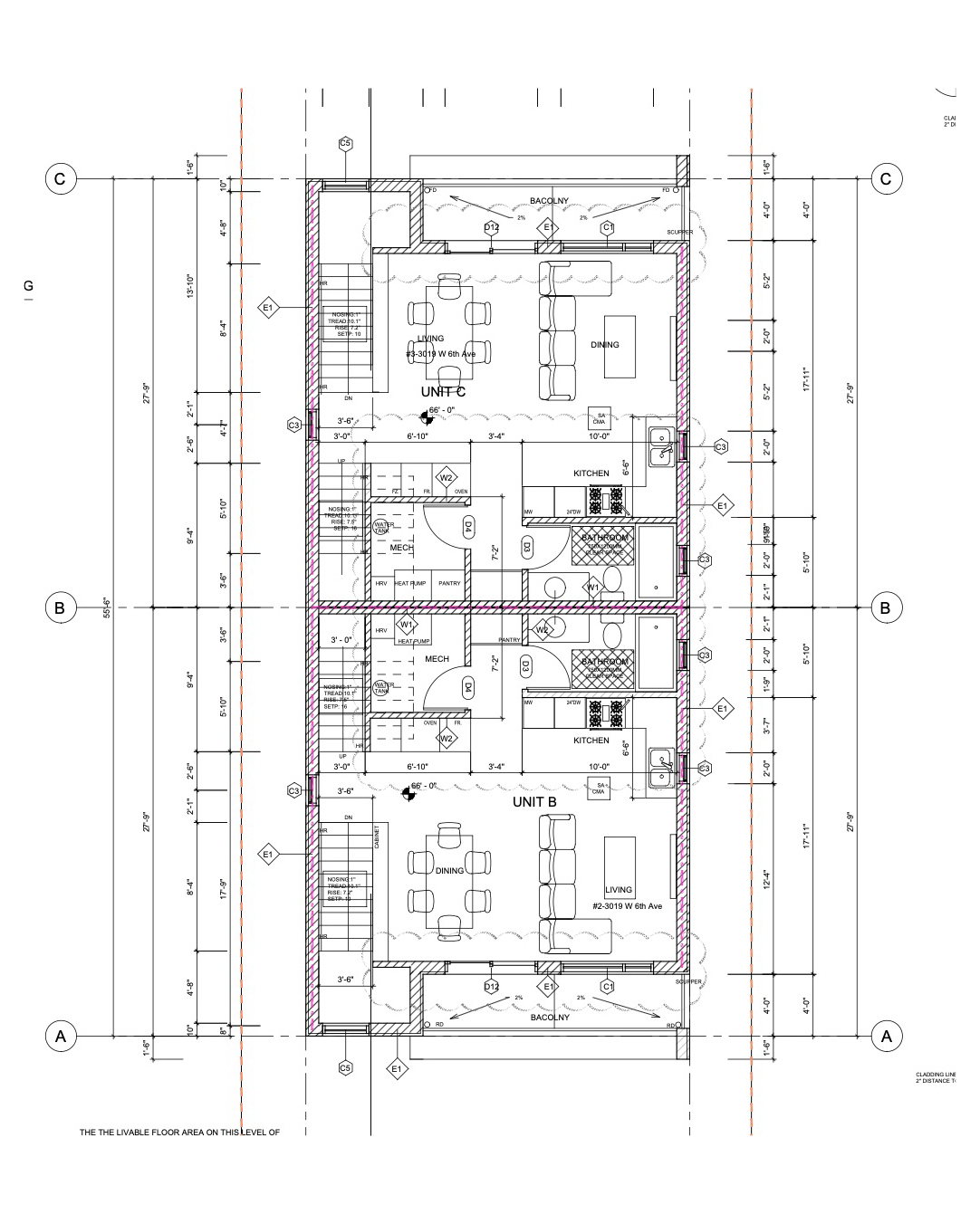
Demolition at 3019 West 6th Ave was completed in December 2025, with construction resuming in January 2026. The project is currently in the foundation phase, with formwork underway for the base concrete, marking the start of full structural construction toward an anticipated 2027 completion. This development reimagines the former property into a thoughtfully arranged multiplex residential community, combining multiple self-contained units within a cohesive architectural form executed in accordance with the approved IFC drawings.
Designed with a focus on efficient unit layouts, natural light penetration, and shared yet private amenity spaces, each residence integrates modern living necessities while contributing to the development’s overall harmony. As construction progresses, Rely Construction is coordinating independent MEP systems, sound-rated assemblies between units, and carefully sequenced trade work to ensure comfort, privacy, and long-term performance for future occupants.
Situated to respond to Vancouver’s evolving urban context and zoning requirements, the project incorporates thoughtful site planning, optimized circulation, accessibility compliance, and detailed quality-control checkpoints aligned with municipal inspection regimes for structural, utility, and life-safety compliance. With demolition complete and foundation construction underway, this multiplex development is being delivered as a technically rigorous, well-coordinated residential project that balances contemporary design, functional unit organization, and Vancouver’s growing urban housing needs.













