Location: 2050 SW Marine Drive, Vancouver, BC
Completion: 2022
Project Type: Civil & Landscape Construction
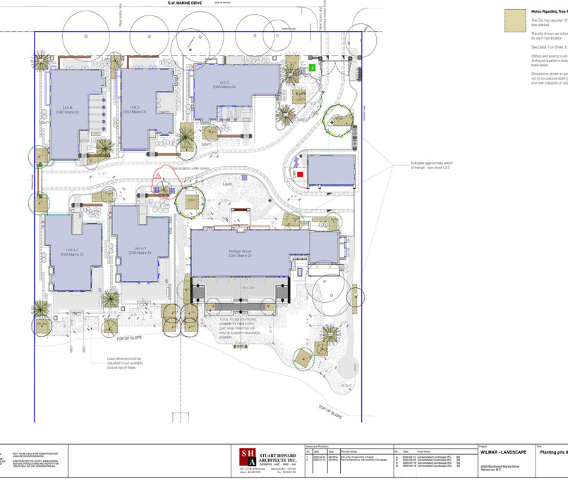
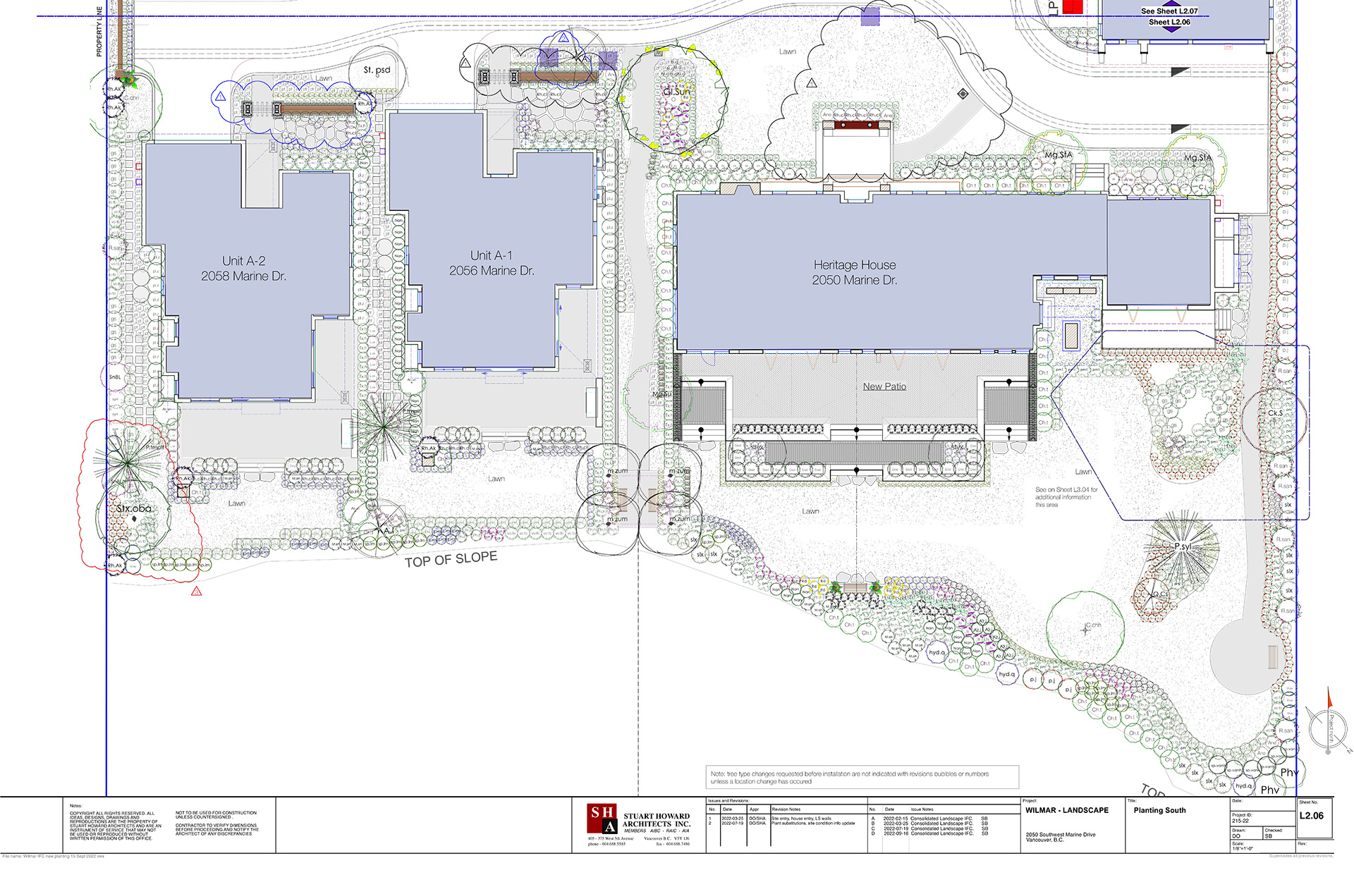
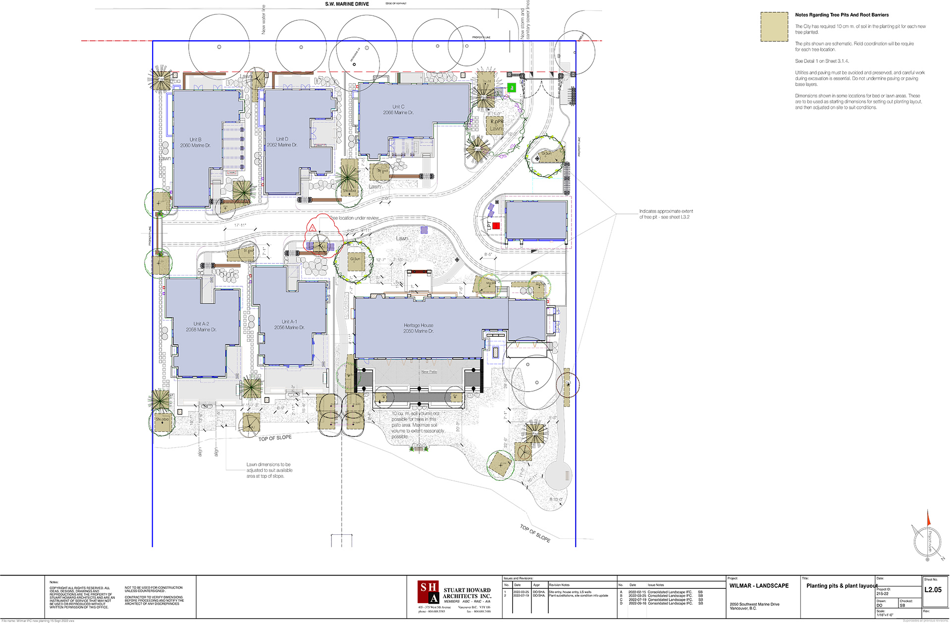
The project team meticulously removed deteriorated driveway surfaces before restoring the gateway and reinstalling a driveway that echoes the original circulation path – a gesture of continuity that honors the estate’s architectural heritage. Simultaneously, grading work was thoughtfully executed to stabilize the site’s steep escarpment and accommodate drainage improvements while maintaining the estate-like topography that defines the site. Featuring engineered soil mixes in new planting beds and built-in planters, the landscaping supports both aesthetic cohesion and environmental resilience, enhancing stormwater absorption and plant health around the heritage structures.
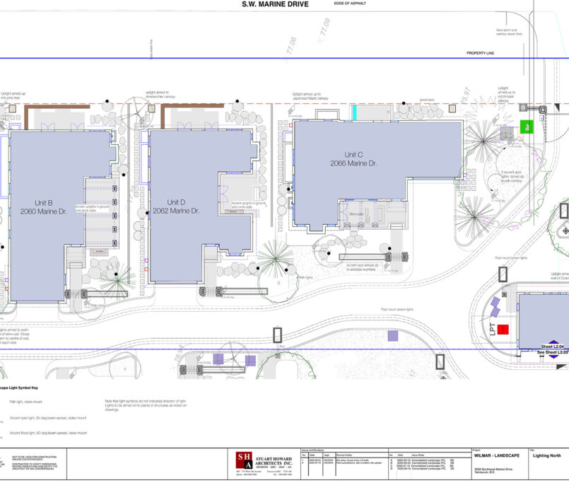
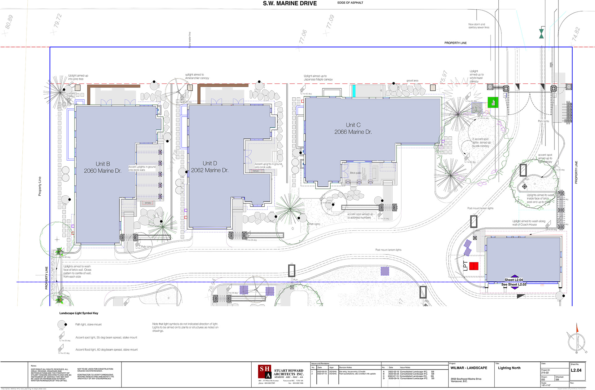
Hardscape treatments were chosen to strike a balance between tradition and practicality. The use of permeable paving, bluestone accents, and decorative gravel surfaces ensures durability and accessibility while complementing the historic architectural palette. Softscape layering – including turf, shrubs, and native trees strategically placed around the residence and infill homes – softens the built edges and reinforces the estate’s park-like character. Integrated low-voltage lighting and a calibrated irrigation system enhance functionality and ambiance after dusk, improving usability without detracting from the visual integrity of the Wilmar grounds.
Collaboration with heritage authorities, civil engineers, and landscape consultants was central to the project’s success. Restoration efforts regarding the heritage residence and coach house followed stringent Vancouver Heritage Register guidelines, ensuring that every landscape intervention – including retaining walls, planting areas, and pedestrian pathways – reinforced conservation objectives. At the same time, the civil scope addressed modern infrastructure demands, from grading for water management to accessibility requirements, ensuring that new site features were both respectful of the past and future-ready.
Key Highlights
This project’s design approach unites multiple objectives: preserving the heritage essence of a nearly century-old estate, integrating modern civil infrastructure, and creating an inviting, well-functioning landscape that supports both legacy and innovation. The outcome is an elegant, safe, and environmentally sensitive site that honors Wilmar’s storied past while setting a sustainable stage for its future.







